- Спецпроекты АРПП
- РИА
- ТАСС
- Интерфакс
- КоммерсантЪ
- РБК
- Ведомости
- Forbes
- Известия
- Российская газета
- Газета.РУ
- LENTA.RU
- ВЗГЛЯД: Деловая газета
- ФедералПресс
- Московский комсомолец
- Комсомольская правда
- АиФ
- Первый канал
- Россия-1
- Россия-24
- НТВ
- РЕН-ТВ
- Москва-24
- МИР
- Радио Россия
- Бизнес ФМ
- TAdviser
- СNews
- ComNews
- D-Russia
- RSpectr
- IT Channel News
- ICT-Online
- Телеспутник
- Другие СМИ
Рассказываем, как компании Нанософт удалось провести цифровую трансформацию процессов проектирования в крупнейшей российской алмазодобывающей компании.
ЗАКАЗЧИК
Институт «Якутнипроалмаз» – основной проектный институт компании АЛРОСА, выполняющий все необходимые проектные работы для объектов строительства.
АК «АЛРОСА» (ПАО) – крупнейшая алмазодобывающая компания, мировой лидер по объему добычи и запасов алмазов. Основные направления деятельности — геологоразведка, добыча и продажа алмазов, производство бриллиантов. Добывающие активы АЛРОСА расположены в Республике Саха (Якутия) и Архангельской области. В группе АЛРОСА работают более 30 тысяч человек.
ВЫБОР РЕШЕНИЯ
Для ИТ-поддержки полного цикла производства требуется формирование разнообразного ИТ-ландшафта, основанного на отечественном программном обеспечении (ПО). При этом более чем актуальна задача выстраивания комплексной системы проектирования, увязанной с процессами строительства и эксплуатации различных объектов.
При выборе ПО компания руководствовалась следующими требованиями:
- интероперабельность программных продуктов
- соответствие потребностям пользователей
- автоматизация рутинных задач
- возможность комплексного подхода в процессе внедрения и эксплуатации.
Отдел промышленных предприятий института «Якутнипроалмаз» зачастую сталкивается с проектными задачами, для решения которых требуется функционал машиностроительных САПР, такие как:
- трехмерное твердотельное и поверхностное моделирование – создание цифровых макетов деталей и сборок, максимально приближенных к реальным объектам
- параметрическое проектирование – быстрое изменение модели путем редактирования ее параметров (размеров, зависимостей), что идеально при создании семейств однотипных изделий
- создание библиотек стандартных и типовых элементов, управление такими библиотеками – операции с библиотеками болтов, гаек, подшипников, шпонок, а также деталей, специфичных для предприятия (нормалей)
- внедрение и контроль корпоративных стандартов – обеспечение единых правил оформления чертежей, использования слоев, шрифтов, стилей линий
- совместимость с другими системами – возможность импорта/экспорта данных из/в другие системы
- организация совместной работы над проектом – параллельная работа нескольких специалистов над различными компонентами одного изделия.
Для решения таких задач компания выбрала nanoCAD Механика PRO – специализированную машиностроительную САПР от компании «Нанософт».
РЕАЛИЗАЦИЯ ПРОЕКТА
Процесс внедрения системы информационного моделирования и автоматизированного проектирования (СИМАП) был разделен в компании на четыре основных этапа, которые реализовывались последовательно.
Этап 1. Проектирование и тестирование системы
На этом начальном этапе закладывался фундамент будущей системы. Работы велись по созданию проектной документации, подготовке методических материалов и проверке функциональности программного решения в тестовом окружении:
- техническое проектирование – разработка архитектуры системы, технических требований и проектных решений
- разработка регламентов и шаблонов – создание официальных документов, регулирующих работу в системе (регламенты), и стандартных шаблонов в соответствии с методологией CAIP
- развертывание и тестирование CИМАП – установка ПО в тестовой среде, проведение всесторонних испытаний для проверки корректности его работы и соответствия требованиям.
Этапы 2 и 3. Внедрение системы
Эти этапы были связаны с подготовкой персонала и началом эксплуатации системы:
- интеграция CИМАП с окружением – настройка взаимодействия новой системы с существующим ИТ-ландшафтом компании (базами данных, системами и ПО)
- обучение пользователей – проведение тренингов для будущих пользователей, чтобы обеспечить их готовность к работе в новых условиях.
Этап 4. Опытно-промышленная эксплуатация
Финальный этап был нацелен на проверку системы в реальных рабочих условиях и ее окончательную доводку:
- выполнение пилотных проектов – реальные проекты компании запускались и разрабатывались в новой системе. Это позволяло оценить ее практическую эффективность и выявить возможные недочеты
- доработка регламентов и шаблонов – по результатам пилотной эксплуатации в разработанные регламенты работы и шаблоны вносились финальные корректировки, позволяющие оптимизировать процессы и адаптировать их под реальные потребности бизнеса.
Внедрение nanoCAD Механика PRO
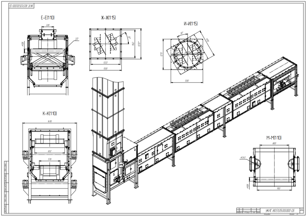
Когда 17 сотрудников института прошли обучение работе в программе nanoCAD Механика PRO, был инициирован пилотный проект «Моделирование ленточного конвейера средствами nanoCAD Механика PRO и Model Studio CS Строительные решения».
Процесс моделирования был разделен на два этапа.
1) Моделирование основной геометрии конвейера в nanoCAD Механика PRO.
Благодаря возможностям работы с деталями (.dwp) и сборками (.dwz) система позволила оптимизировать создание 3D-модели конвейера. Процесс включал этапы моделирования отдельных деталей и их последующего объединения в сборки.
Интеграция 3D-модели конвейера в среду информационного моделирования
Интеграция 3D-модели конвейера в общую информационную модель по разделу ТХ выполнена с применением инструментов передачи моделей из nanoCAD
Механика PRO в решения на Платформе nanoCAD. Модель конвейера в dwg-формате передана в Model Studio CS Строительные решения и стала органичной частью информационной модели ТХ.
РЕЗУЛЬТАТЫ
В рамках общей стратегии СИМАП точечное внедрение специализированной машиностроительной САПР nanoCAD Механика PRO в отделе промышленных предприятий института «Якутнипроалмаз» — это наглядный пример того, как общая стратегия реализуется на уровне конкретных подразделений, решающих уникальные задачи.
Выбор nanoCAD Механика PRO оказался стратегически верным — этот продукт полностью соответствует заявленным требованиям и хорошо встраивается в общий ИТ-ландшафт на базе Платформы nanoCAD.
Успех внедрения обеспечен комплексным подходом, включавшим обучение сотрудников и выполнение пилотного проекта, который наглядно продемонстрировал ключевые преимущества nanoCAD Механика PRO:
- эффективное моделирование сложных объектов – процесс создания 3D-модели конвейера был оптимизирован благодаря специализированному функционалу для работы с деталями (.dwp) и сборками (.dwz). Разделение на этапы моделирования отдельных деталей и их последующей сборки в сложную конструкцию соответствует лучшим практикам машиностроительного проектирования, поддерживает структурированность и управляемость проекта
- наличие истории построений – мощного инструмента внесения изменений, анализа модели и коллективной работы, значительно повышающего гибкость и контролируемость проектного процесса
- беспрепятственная интеграция в общую BIM-среду – ключевым достижением стала успешная передача модели в формате .dwg из nanoCAD Механика PRO в Model Studio CS Строительные решения. Она подтвердила интероперабельность программы: 3D-модель конвейера вошла в состав информационной модели ТХ.
Внедрение в АЛРОСА nanoCAD Механика PRO – это не просто замена одного программного решения другим. Это полноценная цифровая трансформация процессов проектирования, которая:
- повышает эффективность – автоматизация рутинных задач, использование библиотек и параметризация ускоряют процесс проектирования и сокращают количество ошибок
- стандартизирует процессы – внедрение корпоративных стандартов через шаблоны и регламенты обеспечивает единообразие и высокое качество выходной документации;
- обеспечивает сквозную координацию – интеграция машиностроительного проектирования в общую BIM-среду устраняет информационные разрывы между различными этапами жизненного цикла объекта (от проектирования оборудования до строительства зданий)
- развивает компетенции – обучение и практическая работа с современными инструментами повышают квалификацию инженеров
- укрепляет технологический суверенитет страны – успешное внедрение отечественного ПО доказывает возможность создания конкурентоспособных и эффективных рабочих мест на базе российских решений.
Возврат к списку